proyectos de reformas

«realizamos proyecto de reformas, adecuando el espacio a tus programa funcional»

 

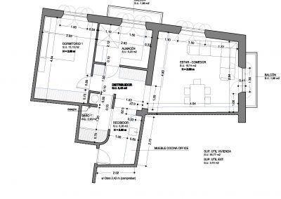
proyecto interiorismo ático

proyecto de reforma interior

Te acompañamos desde el inicio, desde lo general a lo particular y volvemos de lo particular a lo general.

os dejamos una pequeña muestra de trabajos realizados para que puedan empezar a imaginar el suyo

Los proyectos de reforma interior y/o restauración, pueden parecer en un primer momento de ejecución sencilla, aunque puede convertirse en un verdadero dolor de cabeza sino se es asesorado por técnico competente.

El cual, le asesora sobre las primeras medidas de seguridad a tomar si fueran necesarias, tramitación de solicitud de licencia frente a la administración, elaboración de toda la documentación técnica necesaria, detalle sobre la obra realmente a ejecutar, modificaciones posibles que afecten a algún elemento estructural y poder responder con seguridad y eficacia a todos los imprevistos que surgen en este tipo de actuaciones.

Normalmente a simple vista puede parecer de ejecución sencilla, pero siempre aparecen imprevistos que deben ser solventados por técnicos competentes. Entre otros, elementos estructurales deficientes, aumento de cargas, filtraciones o humedades en elementos comprometidos, ventilaciones, condiciones de habitabilidad, etc…

Nuestra recomendación es ponerse en manos de técnicos competentes que le asesoren en todo el recorrido, para solventar desde un inicio toda la problemática y reaccionar con seguridad y celeridad a los inconvenientes que suelen surgir a la hora de acometer este tipo de actuaciones.

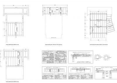
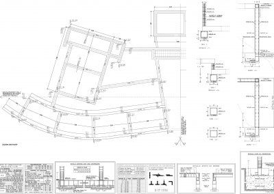
Diseño Escalera Caracol

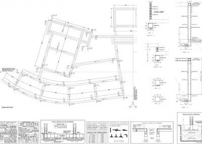
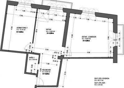
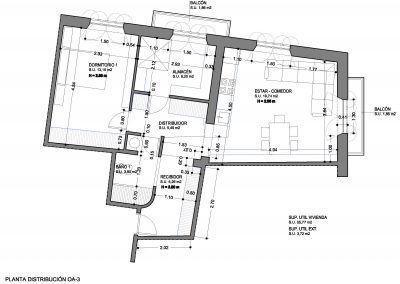
 diseño reforma interior en vivienda existente, apeos, refuerzos estructurales, redistribucion del espacio

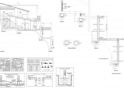
estudio, análisis y diagnosis antes de reforma interior

estudio, análisis y diagnosis antes de reforma interior local existente, refuerzos estructurales

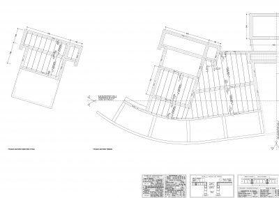
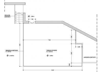
Ampliación terraza Bar T.M Soller

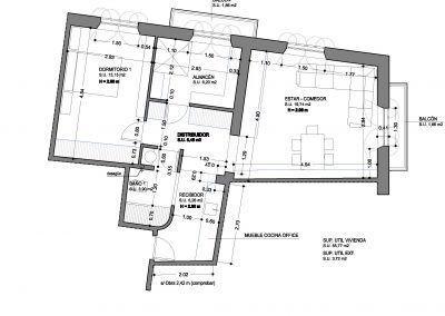
diseño reforma interior parcial en atico

diseño reforma interior piso sobre local comercial

Comprar la vivienda contigua y convertirla en una sola, ¿es posible?

Comprar la vivienda contigua y convertirla en una sola, ¿es posible?

Unir dos propiedades contiguas y convertirlas en una única vivienda nos permite ganar metros y mejorar el bienestar dentro de nuestro hogar, pero ¿cómo se hace y en qué nos afecta este cambio?

Cuando surgen problemas de espacio en la vivienda habitual, podemos optar por comprar una casa más grande o adquirir el inmueble contiguo para anexionarlo al nuestro. Es posible unir dos viviendas, tanto si se encuentran en el mismo nivel como si están a distintas alturas. Si bien es cierto que, antes de tomar esta decisión, es recomendable tener en cuenta ciertos requisitos legales, formales y técnicos. Una vez acometida la reforma del inmueble, también se puede formalizar la unión jurídica notificando el cambio en el registro de la propiedad.

¿Cómo unir dos casas?

Desde el punto de vista legal, para acometer las obras que nos permiten unir dos casas necesitaremos la autorización de la comunidad de propietarios, un proyecto técnico de obra firmado por un arquitecto y la correspondiente licencia de obras que debe conceder el consistorio de la localidad en la que nos encontramos.

La Ley de Propiedad Horizontal (LPH) regula este tipo de acciones, que establece que, para poder acometer una reforma de estas características, será necesario contar con la aprobación de las tres quintas partes de los propietarios. Además, estos deberán contar con el mismo porcentaje en las cuotas de participación. Si tenemos en cuenta esta cuestión, el primer paso será comunicar nuestra intención de unir dos inmuebles a la comunidad de vecinos.

Una vez conseguida la aprobación, llega el momento de contactar con un arquitecto en mallorca competente que se encargue de la redacción del proyecto técnico. Este aspecto es necesario, ya que seguramente durante la reforma habrá que modificar elementos estructurales de la edificación, como muros de carga o zonas comunes, entre otros aspectos.

Además, contratar los servicios de este profesional cualificado puede ser de gran ayuda, puesto que aportará ideas para unir dos casas de forma eficiente y funcional. En este punto es importante tener en cuenta que los condicionantes legales y técnicas no serán los mismos si se trata de viviendas en la misma planta que si se encuentran en diferentes niveles.

Finalmente, será necesario contar con las licencias municipales pertinentes para poder realizar las obras de segregación. Para obtener este permiso, habrá que abonar la tasa por actuaciones urbanísticas y liquidar el Impuesto sobre Construcciones, Instalaciones y Obras (ICIO).

¿Qué supone la unión jurídica de dos viviendas?

Tras la unión física de las dos casas, habrá que modificar la referencia catastral de los inmuebles en el Registro de la Propiedad. De esta manera estaremos dejando constancia de que, tras la reforma, se han unificado las viviendas y, por lo tanto, solo contaremos con una referencia catastral. Es decir, tras ejecutar el proyecto de agrupación, las referencias catastrales anteriores desaparecerán y se le asignará una nueva referencia a la vivienda resultante. ¿Cómo es el trámite para formalizar la unificación?

  • Será necesaria una nueva cédula de habitabilidad para la vivienda resultante.
  • Cambiar la inscripción en el registro de la propiedad.
  • Modificar la inscripción en el catastro.

Deducciones fiscales e impuestos

Una de las ventajas de la unión jurídica de los inmuebles es que permite optar a bonificaciones para primera vivienda o residencia habitual. Resulta evidente que como propiedades independientes no podrían contemplarse ambas dentro de esta categoría.

El pago de los impuestos que gravan la propiedad de la vivienda también se verá afectado. Es el caso de las tasas municipales que pueden tener diferentes conceptos: recogida de basuras, alcantarillado, alumbrado público, etc. Hay que tener en cuenta que cada propiedad paga estos tributos de forma individual, al disponer de una única vivienda en lugar de dos supondrá un ahorro económico. En cuanto al IBI, se devengará una nueva cuota en relación con la nueva referencia catastral de la vivienda resultante.

Unificación de suministros

Unificar los recibos relacionados con algunos servicios básicos como la electricidad, el agua, el gas o el seguro del hogar puede suponer un ahorro económico en el pago mensual de este tipo de facturas. Sin embargo, hay que tener en cuenta que la unión jurídica de las dos viviendas también conlleva gastos relacionados con los servicios notariales y registrales.

Cuotas de la comunidad

El propietario de la nueva vivienda tendrá que seguir haciendo frente a su obligación de pagar la cuota correspondiente a la comunidad de propietarios. Sin embargo, habrá que acordar una modificación de las mismas, ya que con la unificación solo habrá una única vivienda.

Si, finalmente, las necesidades vuelven a cambiar con el tiempo y deseamos separar ambos inmuebles será posible hacerlo. Es una situación reversible, mediante un proceso muy similar al que acabamos de comentar se puede disolver la unificación. Existen supuestos en los que la división de las propiedades puede resultar beneficioso, por ejemplo, la necesidad de vender la vivienda. En este caso, la venta puede resultar más sencilla si disponemos de dos viviendas en lugar de una de grandes dimensiones.

Aunque es posible unificar dos viviendas contiguas, se trata de un proceso complejo que debe atender a cuestiones legales y técnicas. La reestructuración del espacio también puede suponer un reto, ya que contaremos con estancias repetidas, como la cocina o los baños.  Por este motivo, contar con un equipo técnico adecuado puede facilitar mucho el proceso. Asimismo, siempre es recomendable estudiar cada situación en particular, por lo que si estás pensando en realizar esta operación siempre puedes consultar con un jurista especializado en cuestiones inmobiliarias.

Transformar un local en vivienda en Mallorca

Transformar un local en vivienda

Se ha convertido en una alternativa muy pujante, dado que supone un ahorro a la hora de acceder a la propiedad de un inmueble. Sin embargo, antes de lanzarse, hay que tener en cuenta que se trata de un mercado con sus particularidades.

Debemos ser conscientes de que cualquier paso que demos debe contar con el beneplácito de la administración correspondiente. Los locales no están a la misma altura que la vivienda en lo que respecta a condiciones de habitabilidad, así que será necesario hacer obras bajo una licencia previamente concedida. Si lo hacemos por nuestra cuenta saltándonos la ley no podremos empadronarnos en este inmueble, por ejemplo. Además, al no disponer de cédula de habitabilidad o licencia de primera ocupación, será complicado ponerlo en alquiler o dar de alta los suministros.

Debemos ser conscientes de que cualquier paso que demos debe contar con el beneplácito de la administración correspondiente. Los locales no están a la misma altura que la vivienda en lo que respecta a condiciones de habitabilidad, así que será necesario hacer obras bajo una licencia previamente concedida. Si lo hacemos por nuestra cuenta saltándonos la ley no podremos empadronarnos en este inmueble, por ejemplo. Además, al no disponer de cédula de habitabilidad o licencia de primera ocupación, será complicado ponerlo en alquiler o dar de alta los suministros.

Antes de nada, incluso de comprar un local, hay que asegurarse de que es apto para convertirse en vivienda. Para ello, necesitamos que el arquitecto realice un estudio de viabilidad tomando como base el Código Técnico de la Edificación y la normativa urbanística vigente. Este espacio deberá cumplir requisitos relacionados con la accesibilidad, la salubridad, disponer de una superficie mínima, condiciones de iluminación y ventilación, etc. Igualmente, debemos establecer contacto con la comunidad de vecinos para tener su aprobación y asegurarnos de que no existen obstáculos a esta transformación.

Posteriormente, se redactará el proyecto técnico y se solicitará una licencia de cambio de uso en el ayuntamiento donde se ubique el local con el fin de comenzar las obras, previo pago de las tasas municipales que correspondan. Tras las obras, se tramita la cédula de habitabilidad o licencia de primera ocupación. Es importante que se acuda a un notario para que certifique mediante escritura que ese local ahora es una vivienda, y de ese modo conste oficialmente tanto en el Registro de la Propiedad como en el Catastro.

Ponte en contacto con nosotros para comenzar tu camino. Para cualquier tipo de servicios contactar:

arquitectura@grupbonvent.com

solicita tu servicio de arquitectura en mallorca

Resumen de privacidad

Esta web utiliza cookies para que podamos ofrecerte la mejor experiencia de usuario posible. La información de las cookies se almacena en tu navegador y realiza funciones tales como reconocerte cuando vuelves a nuestra web o ayudar a nuestro equipo a comprender qué secciones de la web encuentras más interesantes y útiles.

Puedes revisar nuestra política de privacidad en la página de privacidad y cookies.