proyecto de interiorismo

«realizamos proyecto de interiorismo, adecuando el espacio a tus hábitos»

 

proyecto interiorismo ático

proyecto de interiorismo

Te acompañamos desde el inicio, desde lo general a lo particular y volvemos de lo particular a lo general.

os dejamos una pequeña muestra de trabajos realizados para que puedan empezar a imaginar el suyo

diseño interior atico 

diseño en espacios comunes en comunidad de propietarios

vivienda unifamiliar rústico T.M marratxi

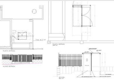
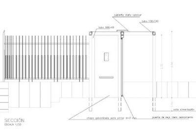
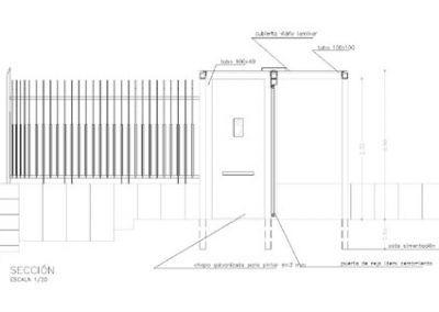
diseño reja en comunidad de propietarios T.M palma

diseño plaça pantera rosa santa ponça, T.M calvia

diseño bar en santa ponça, T.M calvia

Ponte en contacto con nosotros para comenzar tu camino. Para cualquier tipo de servicios contactar:

arquitectura@grupbonvent.com

solicita tu servicio de arquitectura en mallorca

Resumen de privacidad

Esta web utiliza cookies para que podamos ofrecerte la mejor experiencia de usuario posible. La información de las cookies se almacena en tu navegador y realiza funciones tales como reconocerte cuando vuelves a nuestra web o ayudar a nuestro equipo a comprender qué secciones de la web encuentras más interesantes y útiles.

Puedes revisar nuestra política de privacidad en la página de privacidad y cookies.