proyectos obra nueva

Te acompañamos desde el inicio, desde lo general a lo particular y volvemos de lo particular a lo general.

os dejamos una pequeña muestra de trabajos realizados para que puedan empezar a imaginar su proyecto de obra nueva.

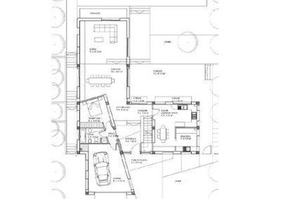
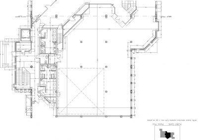
dormis country club santa ponça

vivienda unifamiliar T.M marratxi

ampliación country club santa ponça T.M calvia

Vivienda Unifamiliar Aislada en SRG T.M Marratxi

vivienda unifamiliar aislada SRG en T.M Binissalem

vivienda unifamiliar bioclimatica en Suelo Rústico General     

T.M. Campos

vivienda unifamiliar aislada SRG en T.M PALMA

01.

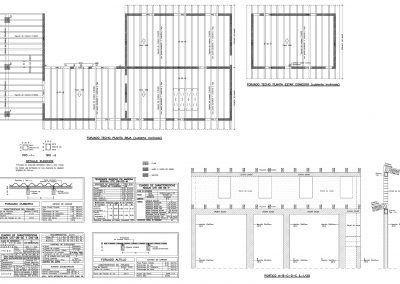
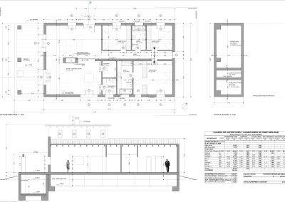
PROYECTOS DE EDIFICACIÓN, PROYECTOS DE OBRA NUEVA, REFORMA Y REHABILITACIÓN INTEGRAL

Nos gusta trabajar en la redacción de todo tipo de proyectos de edificación: viviendas unifamiliares, plurifamiliares, uso turístico, centros docentes u oficinas, desde las primeras ideas del anteproyecto hasta el detalle en el proyecto de ejecución, gestionando la tramitación de las licencias y autorizaciones necesarias para llevar a cabo las obras.

Los proyectos tienen una sensibilidad especial cuando hablamos de intervenciones en edificios existentes: reformas, ampliaciones, cambios de uso, rehabilitaciones, refuerzos estructurales…etc. que exigen un estudio pormenorizado del estado actual de las edificaciones con el objetivo de sacar un máximo partido a la intervención.

02.

DIRECCIÓN, CONTROL Y GESTIÓN DE OBRA. PROJECT MANAGEMENT

Una vez redactado el proyecto se trata de llevarlo a cabo ejecutando la obra. En primer lugar te podemos asesorar en la elección del contratista, mediante estudios comparativos de precios y experiencia realizada en obras. Procederemos a realizar una planificación de los trabajos a ejecutar cada semana o cada mes y los coordinaremos de tal forma que te supongan un ahorro en tiempo y en dinero.

Durante la ejecución de las obras realizaremos un seguimiento detallado, gestionando y tramitando cualquier modificación que el propietario quiera introducir. Por último, una vez finalizados los trabajos entregaremos la documentación final de obra, que incluirá el certificado final de obra.

03.

ESTUDIOS DE VIABILIDAD

Tanto si eres un particular que quiere edificar una vivienda (cuya inversión seguramente será la mayor de tu vida), como si eres un profesional del sector, o un gestor que quiere sacar el máximo rendimiento a su propiedad, podemos estudiar y responder de forma detallada a una serie de preguntas que te vendrán más tarde o más temprano:

¿Cómo me afectan las diferentes normas urbanísticas?
Si quiero construir ¿cómo lo puedo hacer?
¿Qué tramites tengo que seguir?
¿Qué me va a costar?
¿Qué otros gastos tendré además del coste de construcción?
¿Cuánto tiempo necesitaré?

Puedes consultar: Govern Illes Balears (caib.es)

Resumen de privacidad

Esta web utiliza cookies para que podamos ofrecerte la mejor experiencia de usuario posible. La información de las cookies se almacena en tu navegador y realiza funciones tales como reconocerte cuando vuelves a nuestra web o ayudar a nuestro equipo a comprender qué secciones de la web encuentras más interesantes y útiles.

Puedes revisar nuestra política de privacidad en la página de privacidad y cookies.