levantamiento de planos

Por levantamiento de planos entendemos el dibujo de una representación que sea esquemática y con una cierta escala de una finca o construcción inmobiliaria, ya sea esta destinada para vivienda o para otro tipo de usos. En otras palabras, el levantamiento de planos es la obtención de los planos, que deben de ser realizados por un profesional acreditado para ello

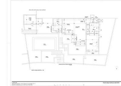
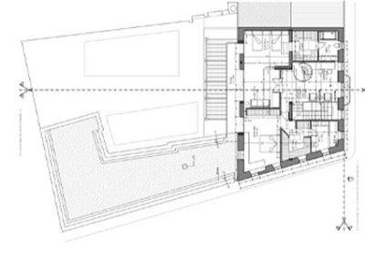
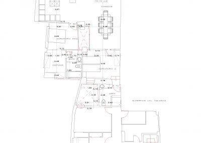
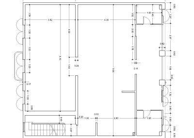
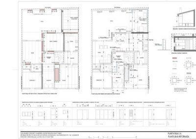
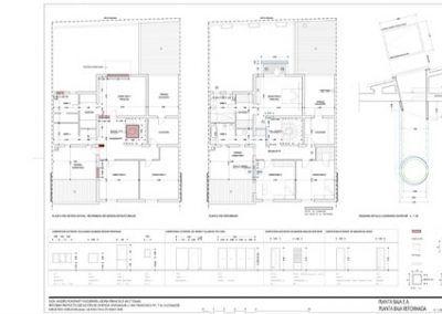
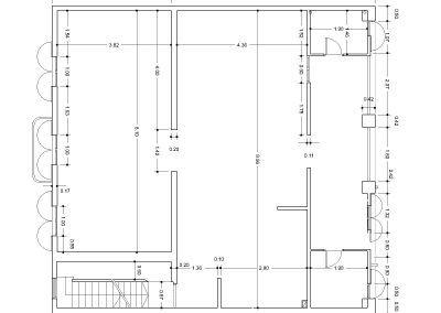
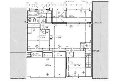
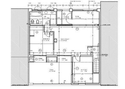
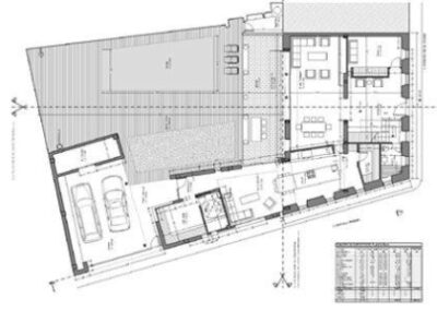
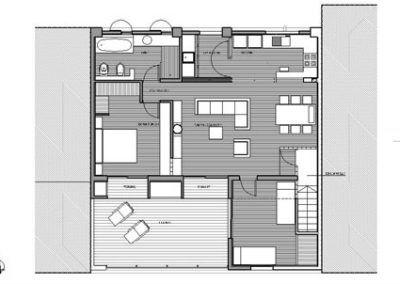
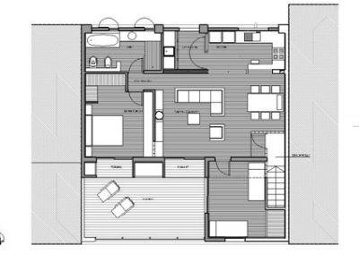
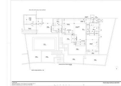
Un plano es, como sabrás, el documento gráfico que muestra de manera clara y perfectamente comprensible para quien sepa interpretarlo (e, incluso, para quien no teniendo conocimientos amplios sobre la materia sea capaz de establecer unas ciertas pautas). Datos tales como la distribución, las medidas del inmueble, la estructura de esa construcción y, en algunos casos, su representación de planta y alzado.

Transmitiendo ideas mediante levantamiento de planos

Uno de los elementos fundamentales en el levantamiento de planos es la transmisión de una idea, concretamente de una idea veraz, concreta y específica del espacio al cual hacemos referencia. En otras palabras, el levantamiento de planos es el contrapunto gráfico a cualquier tipo de descripción que podamos hacer sobre el inmueble de forma verbal o escrita, y que, por la misma limitación del lenguaje, quedará siempre inexacta e incompleta sin esa representación gráfica. 

Como podrás imaginar, en el levantamiento de planos es frecuente encontrar que se adjuntan fotografías para crear una sensación de veracidad aún mayor sobre lo afirmado gráficamente. Con todo, cabe afirmar que estas fotografías, aunque siendo útiles, en modo alguno pueden sustituir, tal cual, la información proporcionada por un plano.

Ventajas de tener un buen levantamiento de planos

Ahora bien, ¿para qué puedes necesitar como propietario de un inmueble algunos planos sobre el mismo? Es decir, al margen de las situaciones clásicas en cambios en su titularidad, ¿será necesario que tengas unos buenos planos sobre tu vivienda o finca? La respuesta, seguramente, es sí.

Casi cualquier acción en la que vaya a estar implicado un arquitecto, ingeniero, constructor, perito y otros profesionales análogos será realizada con mucha más facilidad si se cuenta con unos buenos planos. Y, en estos casos, cuando hablamos de más facilidad nos venimos refiriendo, también, a un mayor ahorro económico. 

Es decir, el precio de un levantamiento de planos acaba revirtiendo en el futuro positivamente para el propietario que se ha lanzado a realizarlo. Pongamos algunos otros ejemplos: si estás realizando un informe de eficiencia energética sobre tu vivienda o local, el mismo necesitará que adjuntes también unos planos de esos inmuebles, por lo que si ya los tienes previamente alzados el precio final será menor. Exactamente igual si lo que solicitamos es una tasación, un certificado o incluso un informe de deficiencias. 

Evidentemente trabajar sobre un inmueble partiendo de los planos es mucho más sencillo para cualquier profesional del ramo, ya que permite hacerse una idea previa del inmueble sin necesidad de visitarlo, e incluso previene errores que de otra forma serían imposibles de prever. Por todo ello la realización de unos buenos planos es, al final, ahorro económico para el particular.

Experimente una emoción sin límites en Slotogate, el mejor centro para los entusiastas de los juegos. Sumérgete en un reino de juegos, que abarca desde los favoritos eternos hasta las adaptaciones contemporáneas. Con tentadoras recompensas, reseñas completas de casinos y publicaciones en varios servicios como casinos online mercado pago y medidas de seguridad, Slotogate garantiza que su diversión permanezca tan protegida como estimulante. Embárquese en un viaje de excelencia: explore Slotogate hoy.

Ponte en contacto con nosotros para comenzar tus sueños. Para cualquier tipo de servicios escríbanos

arquitectura@grupbonvent.com

Resumen de privacidad

Esta web utiliza cookies para que podamos ofrecerte la mejor experiencia de usuario posible. La información de las cookies se almacena en tu navegador y realiza funciones tales como reconocerte cuando vuelves a nuestra web o ayudar a nuestro equipo a comprender qué secciones de la web encuentras más interesantes y útiles.

Puedes revisar nuestra política de privacidad en la página de privacidad y cookies.